
Квадробочка 5×2,3 м
Выберите размер:
Базовая комплектация
- Вход с торца
- Печь для бани ТМФ Саяны Cast Витра
- Бак для воды на 50 л из нержавеющей стали
- Дымоход в сборе из нержавеющей стали
- Термо-полки и трапик в парной
- Стол и 2 лавочки в комнате отдыха
- Комплект электрики и освещения
- Крыша из гибкой черепицы (цвет на выбор)
- Защита от нагрева из минерита
- Входная дверь глухая, в парную - со стеклом
- Обработка защитным составом снаружи (2 слоя)
- Форточка в парном отделении 30х40 см
- Ступенька перед входом
- Разуклонный пол с гидроизоляцией и сливом в парной
Создайте баню своей мечты
Настройте каждую деталь под себя, чтобы отдых приносил максимум удовольствия. Мы позаботились о том, чтобы выбор был легким и приятным.
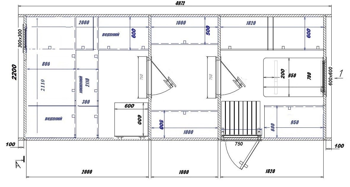
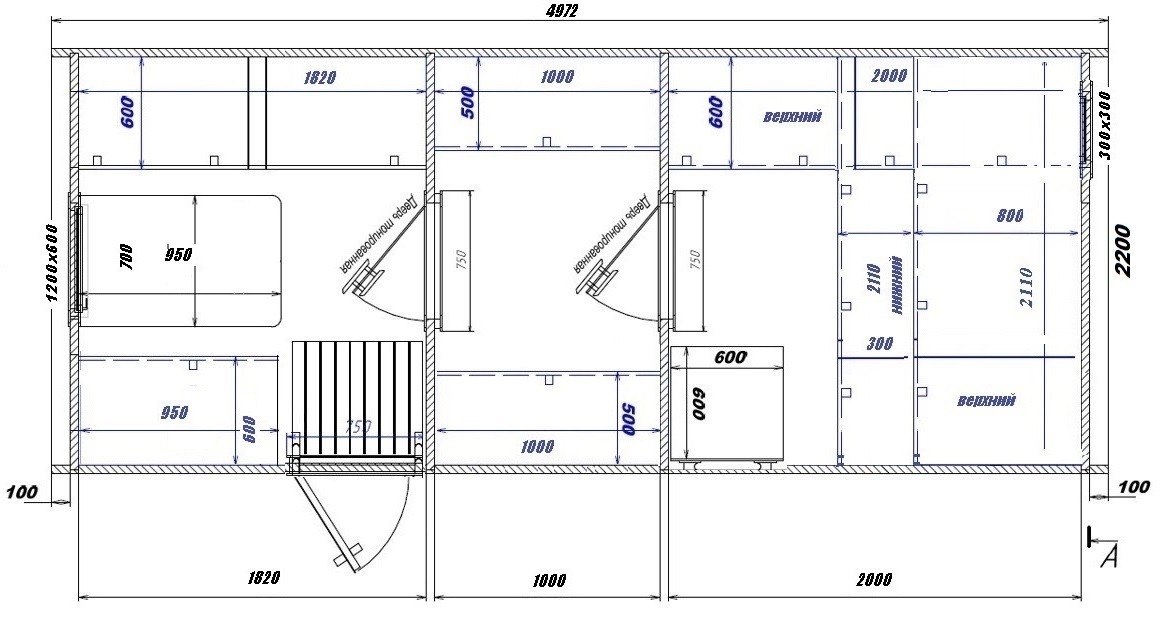
Выбор планировки
Нажмите на планировку, чтобы выбрать её для коммерческого предложения. Значок лупы в углу открывает просмотр в полный размер.


Из какого дерева сделан корпус бани?
Корпус бани из ели — классика русской бани. Доска камерной сушки (влажность 12%) не трескается, не коробится и держит тепло. Натуральный хвойный аромат наполняет парную с первой топки. Отличный выбор по соотношению цены и качества.

Как мы соберём вашу баню?
Идеальный вариант, если к месту установки может подъехать грузовая машина, а ширина бани не превышает 2.5 метра. Мы привезем уже собранную баню и установим её за 1 час.

Расположение входной двери
Современная дверь ПВХ с торца. Отличная теплоизоляция и долговечность. Идеальный выбор для тех, кто ценит практичность и не хочет беспокоиться о защите деревянной двери от влаги и перепадов температур.

Где будет топка?
Топка внутри парной. Классика жанра: вы подкидываете дрова, не отрываясь от процедур, и наблюдаете за игрой огня через стекло печи прямо в парилке.

Какой дизайн защиты печи выберем?
Базовая защита из минерита. Надежный и безопасный материал, который защищает стены от нагрева.

Какую модель печи выберем?
Печь для бани ТМФ Саяны Cast Витра. Мощная печь-сетка для просторных парных до 18 куб.м. Стильный прозрачный экран «Витра» позволяет любоваться живым огнём прямо из парной. Жаростойкая сталь, открытая сетчатая каменка и продуманная конвекция обеспечивают равномерный жар и насыщенный пар. Российское производство — надёжность, проверенная годами.

Какого цвета будет дымоход?


Какое окно поставим в комнате отдыха?
Представьте: вы пьете чай после парения и смотрите на свой сад. Окно с двухкамерным стеклопакетом и тонировкой сохранит тепло и приватность, добавив уюта.
- Фрамуга (открытие на себя) для проветривания
- Двухкамерный стеклопакет с тонировкой
- Профиль с внешней ламинацией

Нужно ли дополнительное окно в стене?


Какие окна будут в парной?



Какую мебель добавим для удобства?



Какой вариант душевой вам подходит?
Изолированное пространство для комфортного мытья. Включает: разуклонный пол с гидроизоляцией и сливом — никакой сырости, только чистота и порядок.
Душевая, совмещённая с проходом из парной — удобный лаконичный маршрут. Включает: разуклонный пол с гидроизоляцией и сливом — надёжная защита от влаги на годы вперёд.

Какие опции по сантехнике нужны?








Что по электрике и розеткам?
В базовую цену уже включено:
- Вся проводка из негорючего кабеля ВВГнг (ГОСТ) — безопасно и надёжно
- Заземление по всей бане — соответствие нормам электробезопасности
- Освещение во всех помещениях
- 1 розетка в комнате отдыха






Покрытие пола
Деревянный пол входит в базу. Можно добавить кварц-винил, тёплый пол или оба сразу — они суммируются



Будем ли утеплять баню?
В базе — стандартная теплозащита каркаса. По желанию: утепление пола. Повторный клик по карточке снимает выбор; если не выбрано, дополнительное утепление пола в заказ не входит.

В какой цвет покрасим баню?










Какой цвет выберем для торцов и наличников?

Какой цвет кровли подойдет к вашему участку?




На что будем ставить баню?


Добавим приятных мелочей?






Финальные штрихи для идеального отдыха?
















Какой подарок выберете?




Куда доставим вашу баню?


Как вам удобнее оплатить?



Расчёт для КП
Сумма по конфигурации: 458 850 ₽
Итог вашей комплектации
Квадробочки
Квадробочка 5x2.3м
- Размер: 5х2.3 м
- Материал корпуса: ель
- Поставка: готовая баня (манипулятор)
- Печь: в парной
Предварительная стоимость
458 850 ₽
Цена без доставки и дополнительных работ, точный расчет после уточнения деталей

Ежедневно, с 10:00 до 18:00
Москва
ТЦ Синдика, МКАД 65 км
Санкт-Петербург
Парголово, Выборгское ш., 212
«Озерки», место 31А
Выставки
Две выставочные площадки: Москва, Строгино, МКАД 65 км, ТЦ «Синдика» и Санкт-Петербург, пос. Парголово, Выборгское шоссе, 212, «Выставка коттеджей в Озерках». Ждём вас, Ежедневно, с 10:00 до 18:00 — приезжайте посмотреть бани вживую, оценить материалы и спокойно выбрать подходящую модель.
Записаться на посещение
Оставьте контакт — позвоним и выберем удобное время для визита
Контакты
Звоните, пишите в мессенджер или приезжайте — ответим на любые вопросы
Санкт-Петербург
Пос. Парголово,
Выборгское шоссе, 212
«Озерки», место 31А
Часы работы
Ждём вас
Ежедневно, с 10:00 до 18:00
Выходных нет
Справочно
Квадробочка 5x2.3м — кратко и по делу
Справка по текущей выбранной модели: размер 5х2,3 м, площадь 11,5 м². Блок обновляется вместе с выбранным размером этой серии.
Формат
Квадробочка 5x2.3м в размере 5х2,3 м — компактная квадробочка с более прямой геометрией внутри и удобной базой для повседневного парения.
Размер
5х2,3 м, площадь 11,5 м², высота 2,3 м.
Планировка
Мойка 110 см, предбанник 130 см
Кому подойдёт
Хороший баланс между компактностью и удобством: комфортно для пары или небольшой семьи без ощущения тесноты.
На участке
Размер 5х2,3 м уже даёт заметный комфорт внутри, но по-прежнему остаётся удобным для аккуратной установки на частной территории.
География
Показываем и сопровождаем проекты в Москве и Московской области, Санкт-Петербурге и Ленинградской области — поэтому формат легко примерить к вашему участку и сценарию использования.
Мах