БАНИЛАЙФ
Баня «Биг Хаус» 5х6

Баня «Биг Хаус» 5х6

Выберите размер:

Базовая комплектация:

  • Печь TMF Саяны Витра с закрытой каменкой
  • Электрика с заземлением «под ключ»
  • Г-образные термо полки в парной
  • Трапы во всех помещениях
  • Окно ПВХ 1200х800 в зоне отдыха
  • Межкомнатные двери матовые/бронза
  • Окно в парной 30х30 см
  • Входная теплая дверь ПВХ 1800x700
  • Стол и 3 лавки в комнате отдыха
990 000 ₽

Создайте баню своей мечты

Настройте каждую деталь под себя, чтобы отдых приносил максимум удовольствия. Мы позаботились о том, чтобы выбор был легким и приятным.

Выбор планировки

Нажмите на вариант, чтобы посмотреть планировку в полный размер. Выбранная планировка будет добавлена в коммерческое предложение.

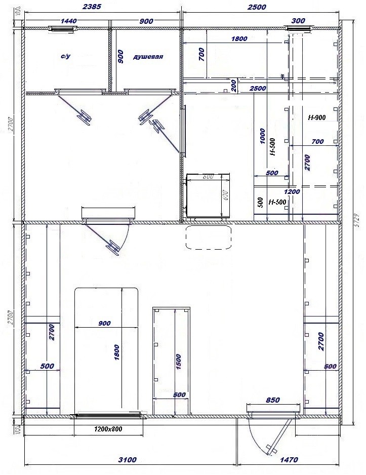
Планировка №1
1
Планировка №2
2

Из какого дерева сделан корпус бани?

Ель950 000 ₽
Термо-ель1 111 500 ₽

Корпус бани из ели — классика русской бани. Доска камерной сушки (влажность 12%) не трескается, не коробится и держит тепло. Натуральный хвойный аромат наполняет парную с первой топки. Отличный выбор по соотношению цены и качества.

Еловая доска

Как мы соберем вашу баню?

Доставка в готовом виде0 ₽
Сборка на участке95 000 ₽

Идеальный вариант, если к месту установки может подъехать грузовая машина, а ширина бани не превышает 2.5 метра. Мы привезем уже собранную баню и установим её за 1 час.

Сборка на участке

Расположение входной двери

Дверь ПВХ0 ₽
Боковой вход с дверью ПВХ20 000 ₽
Панорамная группа50 000 ₽

Современная дверь ПВХ с торца. Отличная теплоизоляция и долговечность. Идеальный выбор для тех, кто ценит практичность и не хочет беспокоиться о защите деревянной двери от влаги и перепадов температур.

Расположение входа

Входная группа

Дверь 1800×700 + окно 1200×8000 ₽
Панорамная группа 1800×230025 000 ₽

Стандартная входная группа включает металлопластиковую дверь 1800×700 и окно 1200×800. Надёжная теплоизоляция, стеклопакет, хорошая светопроницаемость — оптимальный выбор для большинства проектов.

Входная группа

Где будет топка?

Внутри парной0 ₽
Вынос в комнату отдыха15 000 ₽
Вынос на улицу20 000 ₽

Топка внутри парной. Классика жанра: вы подкидываете дрова, не отрываясь от процедур, и наблюдаете за игрой огня через стекло печи прямо в парилке.

Расположение топки

Какой дизайн защиты печи выберем?

Обычный минерит (серый)0 ₽
Красивый минерит (кирпичи)6 000 ₽

Базовая защита из минерита. Надежный и безопасный материал, который защищает стены от нагрева.

Защита печи

Какую модель печи выберем?

Саяны Inox Витра (ТМФ)0 ₽
Искандер 3K (Техно Лит)0 ₽
Атмосфера-L (ПроМеталл)+100 000 ₽

Саяны Inox Витра (ТМФ). Мощная печь-сетка для просторных парных до 18 куб.м. Стильный прозрачный экран «Витра» позволяет любоваться живым огнём прямо из парной. Жаростойкая сталь, открытая сетчатая каменка и продуманная конвекция обеспечивают равномерный жар и насыщенный пар. Российское производство — надёжность, проверенная годами.

Печь для бани

Какого цвета будет дымоход?

Серебристый дымоход
Серебристый
(нержавейка)
0 ₽
Черный дымоход
Черный
(нержавейка)
15 000 ₽

Какое окно поставим в комнате отдыха?

Окно ПВХ 900x6000 ₽
Окно ПВХ 1200x6006000 ₽
Окно ПВХ 1200x8008000 ₽
Окно ПВХ Панорамное 1200x90016000 ₽

Представьте: вы пьете чай после парения и смотрите на свой сад. Окно с двухкамерным стеклопакетом и тонировкой сохранит тепло и приватность, добавив уюта.

  • Фрамуга (открытие на себя) для проветривания
  • Двухкамерный стеклопакет с тонировкой
  • Профиль с внешней ламинацией
Окно ПВХ

Нужно ли дополнительное окно в стене?

Окно ПВХ 900x600
Окно ПВХ 900x600
14 000 ₽
Окно ПВХ 1200x600
Окно ПВХ 1200x600
18 000 ₽

Какие окна будут в парной?

Два окна 300x300
Два окна 300x300
0 ₽
Замена на 600x600
Замена на 600x600
3 500 ₽
Панорамное стекло
Панорамное стекло
25 000 ₽

Какую мебель добавим для удобства?

Шкаф для вещей
Шкаф для вещей
15 000 ₽
Ниша рундук
Ниша рундук
встроенная в лежак
6 500 ₽
Дополнительный ярус
Доп. ярус
лежак в парилке
8 000 ₽

Какой вариант душевой вам подходит?

Без душевой0 ₽
Отдельная душевая40 000 ₽

Изолированное пространство для комфортного мытья. Включает: разуклонный пол с гидроизоляцией и сливом — никакой сырости, только чистота и порядок.

Проходная душевая40 000 ₽

Душевая, совмещённая с проходом из парной — удобный лаконичный маршрут. Включает: разуклонный пол с гидроизоляцией и сливом — надёжная защита от влаги на годы вперёд.

Душевая зона

Какие опции по сантехнике нужны?

Разводка водоснабжения
Разводка водоснабжения
20 000 ₽ / шт
0
Колобок 15 литров
Колобок 15 литров
15 000 ₽
Колобок 30 литров
Колобок 30 литров
18 000 ₽
Бойлер Thermex Double 50
Бойлер Thermex Double 50
Накопительный водонагреватель 50 л. Нержавеющий бак, TitaniumHeat нагреватель, мощность 1000/1500/2500 Вт. Горячая вода в любой момент
30 000 ₽
Обливное устройство EVEREST BLACK 35л
Обливное устройство EVEREST BLACK 35л
Настенное обливное ведро с цепочкой — мощный контрастный душ прямо в парной
40 000 ₽
Насосная станция
Насосная станция
Автоматическая подача воды из скважины или колодца под стабильным давлением — вода всегда есть, когда нужна
50 000 ₽

Что по электрике и розеткам?

В базовую цену уже включено:

  • Вся проводка из негорючего кабеля ВВГнг (ГОСТ) — безопасно и надёжно
  • Заземление по всей бане — соответствие нормам электробезопасности
  • Освещение во всех помещениях
  • 1 розетка в комнате отдыха
Розетка классика
Розетка классика
0 ₽
Замена на 2-х постовую
Замена розетки на 2-х постовую
500 ₽
Дополнительная розетка
Дополнительная розетка
2 000 ₽
0
Дополнительная розетка 2-х постовая
Дополнительная розетка 2-х постовая
2 250 ₽
0
Ретро-проводка
Ретро-проводка
30 000 ₽
Уличный светильник
Уличный светильник
5 000 ₽ / шт
0

Покрытие пола

Выберите, каким будет финишное покрытие пола в вашей бане

Деревянный пол
Деревянный пол
Тёплый, натуральный
База
Кварц-винил
Кварц-винил
Влагостойкий, долговечный
5 000 ₽ / м²
Электрический тёплый пол
Тёплый пол
Электрический, равномерный прогрев
3 300 ₽ / м²

Будем утеплять пол?

Без доп. утепления0 ₽
Утепление пола76 000 ₽

Что входит в утепление пола:

  • Каменная вата 150 мм — надёжный утеплитель, не горит, не боится влаги и отлично держит тепло даже в сильные морозы
  • Ветрозащита — специальная мембрана защищает утеплитель от продуваний снизу
  • Защита от грызунов — металлическая сетка по периметру, чтобы утеплитель всегда оставался в целости

В какой цвет покрасим баню?

Сосна
Сосна
0 ₽
Калужница
Калужница
0 ₽
Орегон
Орегон
0 ₽
Рябина
Рябина
0 ₽
Красное дерево
Красное дерево
0 ₽
Тиковое дерево
Тиковое дерево
0 ₽
Ореховое дерево
Ореховое дерево
0 ₽
Палисандр
Палисандр
0 ₽
Цвет на выбор
Цвет на выбор
4 000 ₽

Какой цвет выберем для торцов и наличников?

Белый0 ₽
Черный0 ₽
RAL на выбор2000 ₽
Цвет торцов: Белый
Белый

Какой цвет кровли подойдет к вашему участку?

Коричневый
Коричневый
Цена: 0 ₽
Красный
Красный
Цена: 5000 ₽
Серый
Серый
Цена: 5000 ₽
Зеленый
Зеленый
Цена: 5000 ₽

На что будем ставить баню?

Комплект блоков ФБС
Комплект блоков ФБС
(8 шт)
Входит в базу
Свайный фундамент
Свайный фундамент
(выберите количество свай)
5 000 ₽ / шт

Добавим приятных мелочей?

Можжевеловое пано 50х40
Можжевеловое пано 50х40
Цена: 3000
0
Дровник "Соты"
Дровник "Соты"
Цена: 15000
0
Дровник
Дровник
Цена: 50000
0
Лавочка 1.8м
Лавочка 1.8м
Цена: 15000
0
Камни (Габа Диабаз) 20 кг — в базе
Камни (Габа Диабаз) 20 кг — в базе
Цена: 0
0
Камни (Габа Диабаз) — 1 коробка (20 кг)
Камни (Габа Диабаз) — 1 коробка (20 кг)
Цена: 1500
0

Финальные штрихи для идеального отдыха?

Брус 100×100 - 2 шт.
Брус 100×100 - 2 шт.
4000
Брус 100×100 - 4 шт.
Брус 100×100 - 4 шт.
8000
Ступень
Ступень
5000
Подспинники в парной
Подспинники в парной
5000
Подспинники в комнате отдыха
Подспинники в комнате отдыха
5000
Ограждение печи
Ограждение печи
5000
Выдвижной полок
Выдвижной полок
3000
Тонирование мебели, трапиков, наличников
Тонирование мебели, трапиков, наличников
15000
Обработка душевой защитным составом
Обработка душевой защитным составом
9000
Обработка парной защитным составом
Обработка парной защитным составом
7000
Ламповая подсветка полков
Ламповая подсветка полков
9000
Светодиодная подсветка парной
Светодиодная подсветка парной
15000
Установка джутового каната
Установка джутового каната
10000
Второе дыхание
Второе дыхание
20000
Увеличение полков на 10 см
Увеличение полков на 10 см
1 500 ₽ / шт
0
Дополнительное примечание
Дополнительное примечание
Цена: по запросу

Какой подарок выберете?

Ступень
Ступень
Цена: 0 ₽
Спинки в парной
Спинки в парной
Цена: 0 ₽
Спинки в комнате отдыха
Спинки в комнате отдыха
Цена: 0 ₽
Ограждение печи
Ограждение печи
Цена: 0 ₽

Куда доставим вашу баню?

Город отгрузки
г. Одинцово, Московская область
г. Вологда, ул. Саммера 55 а
г. Краснодар

Для рассчета цены доставки, выберите вначале ближайший к вам город отгрузки

Газель
Газель
Доставка от цеха отгрузки до вас на Газеле
км:
цена:
Манипулятор
Манипулятор
Доставка от цеха отгрузки до вас на Манипуляторе
км:
цена:

Как вам удобнее оплатить?

Наличными
Наличными
QR-код
QR-код
По реквизитам (юр. лица)
По реквизитам (юр. лица)
Надбавка 7 %

Инвестиция в ваше здоровье и семейный уют:

990 000 ₽

Остался всего один шаг до вашей мечты

Нажимая на кнопку, я соглашаюсь с и компании